2023年11月13日,第九届“中装杯”全国老员工环境设计大赛结果揭晓,我司环境设计专业员工作品参赛19项,获奖7项,分别荣获全国一等奖1项,二等奖2项、三等奖4项。
比赛介绍
“中装杯”全国老员工环境设计大赛,是在中国建筑装饰协会指导下组织开展、面向全国在校环境设计类专业员工的公益性大赛,大赛九年来共覆盖院校1000余所,已成为具有广泛影响力的高校员工设计赛事。
第九届“中装杯”全国老员工环境设计大赛赛题设置紧扣社会、经济及行业热点,包括空间创意类(单身公寓、休闲别墅)、深化设计类(办公空间设计、餐饮空间设计)、产品设计类、乡村振兴类、毕业设计类、数字设计类六大赛题。2023年3月22日,中国高等教育学会发布《2022全国普通高校老员工竞赛分析报告》,“中装杯”全国老员工环境设计大赛进入名单。
获奖名单

第九届“中装杯”全国老员工环境设计大赛获奖名单获奖作品展示
①
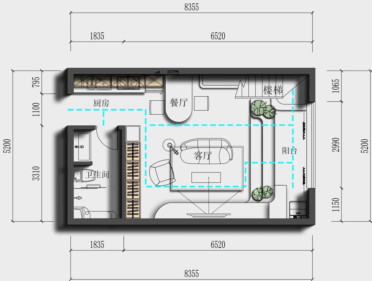
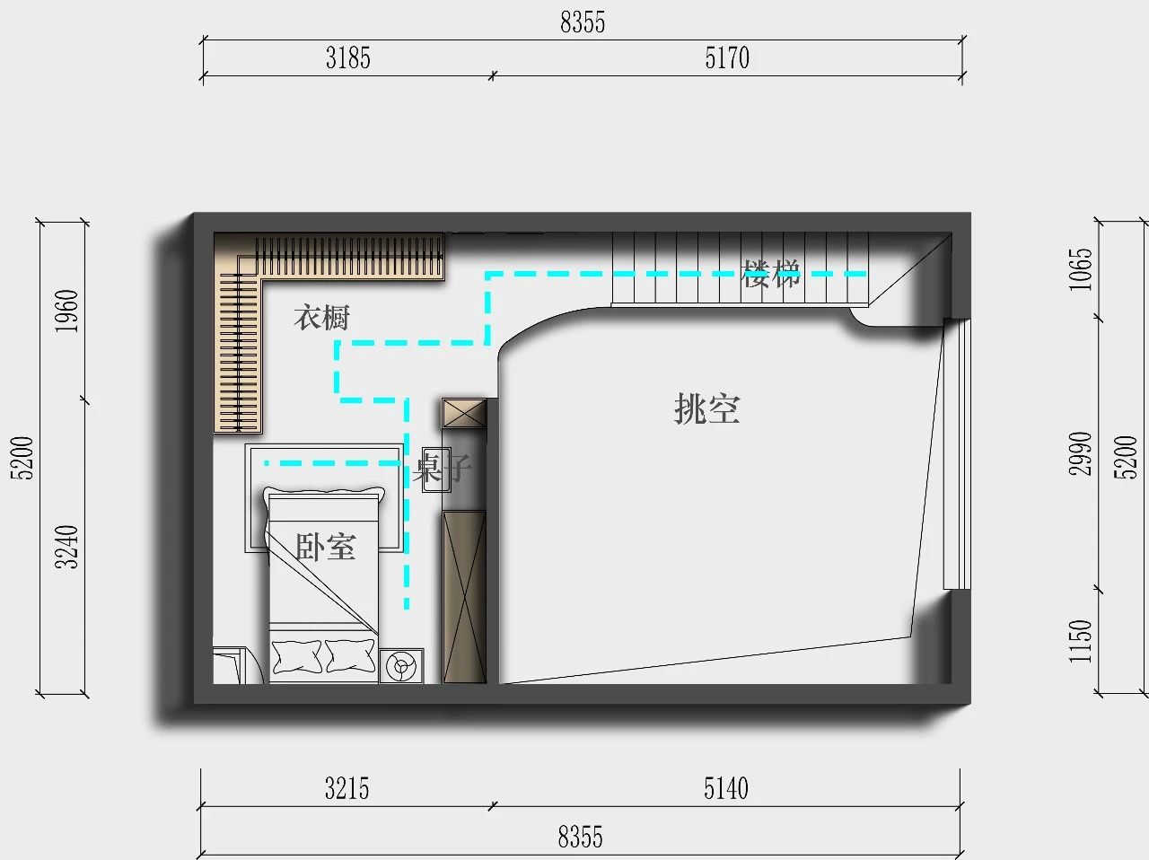
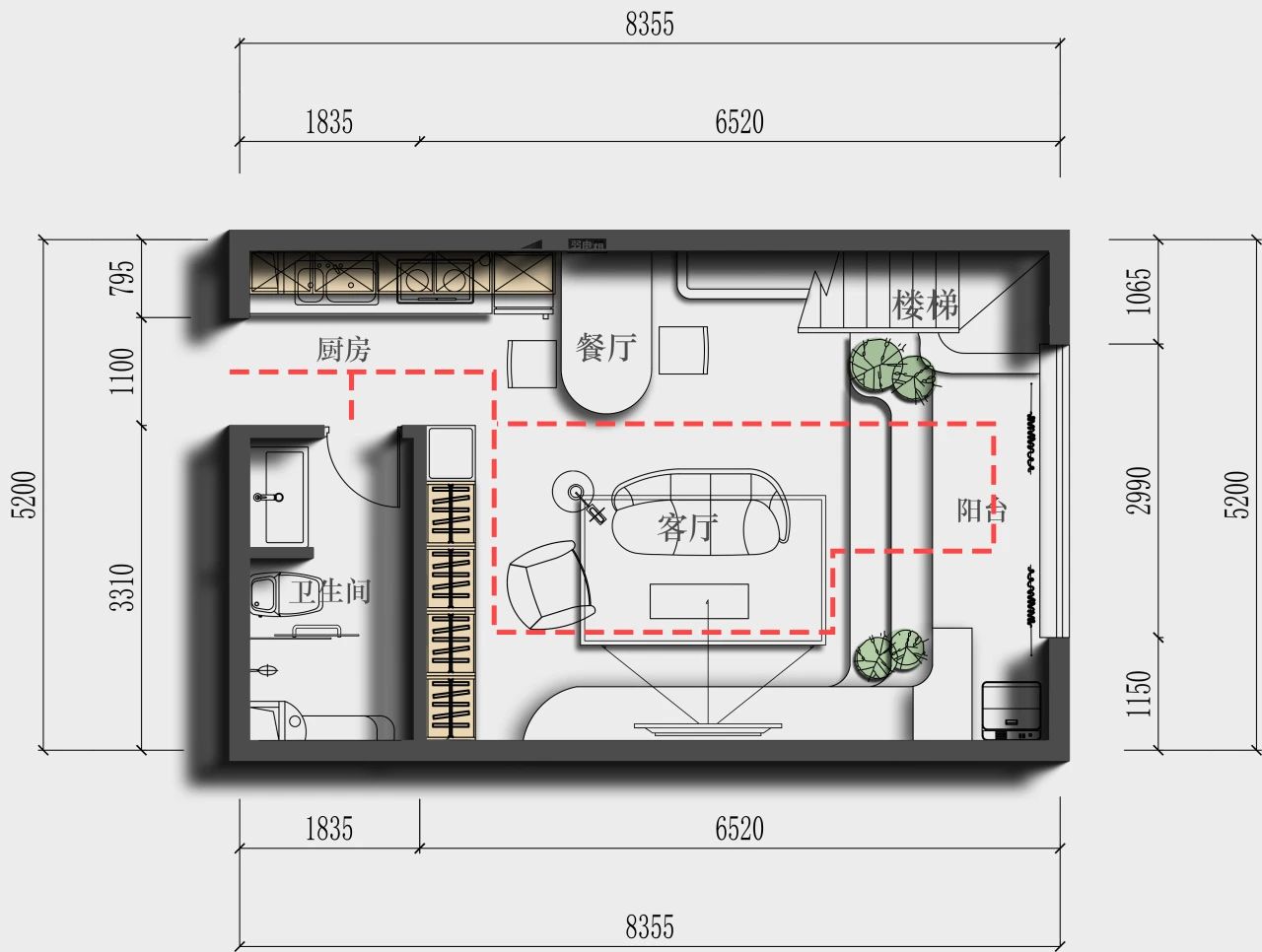
作品名称:《枝叶扶苏》
参赛赛题:空间创意类-单身公寓设计
作品作者:何金群/余建豪
指导老师:鲁娜/王羽
设计理念:万目攒视,见有勾萌出,渐大;俄成树,枝叶扶苏,倏而花,倏而实,硕大芳馥,累累满树。每位单身女性都是一株蓄势待发的树苗,在灯火喧嚣的城市里,树苗需要在参天大树的庇护下恣意而生。本案是一套为单身女性打造的高质量公寓空间,它即为参天大树,树屋提供满满的安全感与舒适感;树洞提供足够的收纳空间;果实提供安静的办公学习空间,让个人的内在提升永不停息;绿叶寓意自然,让居住者在钢筋水泥空间中触摸清新和自然。












②
作品名称:《白日造梦》
参赛赛题:空间创意类-单身公寓设计
作品作者:宋希雅/王雨薇
指导老师:鲁娜/熊倬锐/王羽
设计理念:每个女孩心中都住着一个爱丽丝,希望自己掉入兔子洞,遇见疯帽子、三月兔、柴郡猫等小伙伴,冒险在魔法后花园里。本案人物设定为酷爱绘本创作的插画师,以爱丽丝梦游仙境故事为主题,展开单身公寓空间的设计概念演绎。将故事脉络化为空间动线,提取爱丽丝冒险故事关键情节,通过爱丽丝蓝裙、钟表、扑克牌等动画符号的空间元素演变,打造沉浸式感官体验,营造神秘且童趣的家居氛围,讲述蜕变成就梦想的积极人生故事。









③
作品名称:《展悦——茶云间》
参赛赛题:空间创意类-单身公寓设计
作品作者:黄子格/王文静
指导老师:鲁娜/熊倬锐/王羽
设计理念:“几榻有变,器具有式,位置有定,贵其精而便,简而裁,巧而自然也。”本案户主为一位追求生活品质并爱好陶器收藏的陶艺单身女教师,公寓空间从女教师的兴趣爱好及审美感受出发,以艺术馆为出发点,借鉴美术展览馆的处理手法,引入空间骨架塑造室内场景,将观展脉络化为空间动线,在起、承、转、合中以现代设计语言讲述空间的人文气质,梅花窗、木格栅、无主灯线性照明……整体回归静谧质朴的东方气息居住氛围。





④
作品名称:《宅•园》
参赛赛题:空间创意类-单身公寓设计
作品作者:菊相/郑旖蕾
指导老师:鲁娜/熊倬锐/王羽
设计理念:本案以宋式山水园林为设计蓝本,借鉴中式园林布局及造景手法,使宅中有画,画中有诗,因画成景、以诗入园,打造温馨而富有诗意的“宅•园”。居者在香气弥漫的宅间,焚一炉馨香,品一壶清茶,插三五只花,芳香袅袅,芳馥溢漓,这是对宋式山水园林的继承,亦是对新居住场景的探索。







⑤
作品名称:《花遇——基于乡村振兴视角下文化共享空间的建筑改造设计》
参赛赛题:乡村振兴类-规划设计
作品作者:刘闽君/黄彦嘉/林波
指导老师:蒋丽娜/姜清玉
设计理念:该案以杭州钱塘区乡村振兴示范村江东村为基地,选取江东村极具代表性的花卉景观园区作为方案切入点,将花卉中心区处一幢坡屋顶建筑,改造为集可再生能源(太阳能、风能)与阳光房结合的,集盆栽鉴赏、文化长廊、商业洽谈于一体的花卉植物园展示建筑。建筑外立面为玻璃幕墙,展示区域具备阳光房的功能,内部清水混凝土实体建筑作为商业洽谈区域。方案的技术创新点:1、阳光房空调能耗源于绿色建筑设计中的太阳能光伏建筑一体化。2、团队运用净化水体的花卉实现中水循环可再生净化系统。3、中央景观楼梯设计将绿色屋顶和花卉展示合二为一。该案结合了杭州地域特色和自然景观优势,利用绿色建筑与可再生能源技术,展现了设计团队乡村建筑改造的创意和凝聚力。


⑥
作品名称:《“拾光影相”摄影师住宅设计》
参赛赛题:毕业设计类-环境设计
作品作者:邱丁婷
指导老师:李瓯
设计理念:本案以摄影中较为重要的“光影”元素为出发点进行设计,通过光线、空间利用和家具搭配等方面综合考虑,打造出一个舒适、美观、实用的居住环境,通过多种不同的手法表达主体物,创造一种新的空间含义,并且将其具体化为点、线、面的建筑语言,使室内空间充满着生动的视觉画面,创造拥有镜头感的室内空间,从而为室内设计增添更多的体验和活力。


⑦
作品名称:《万象初新》
参赛赛题:产品设计类-文创产品
作品作者:吴凌锋
指导老师:李瓯
设计理念:“万象”指传统窗棂纹样背后的中华文化博大精深,“初新”指现代建筑的诞生,既传承古典美,也发展现代美,包罗万象、多姿多彩。整体底盘采用传统古典窗棂纹样,上半部分以苏州国际金融中心及周边建筑群为原型,底部以中国传统窗棂为原型,由金属和玻璃组成,呈磨砂透明玻璃效果,有从中生长出现代建筑之意,是古代与现代的碰撞。





未来,我司环境设计专业将继续以参与比赛为契机、参与比赛为载体,继续探索“以赛促教、以赛促学”的人才培养模式,注重引导和鼓励员工积极参加各类赛事,提升专业师生的创新意识和艺术设计能力,为学院未来稳步发展奠定坚实基础。